Make your home at Dexter Yard
With both on-site and neighborhood amenities, easy access to I-5 and 99, and premier views and Lake Union access, Dexter Yard is the future home of creativity and innovation.
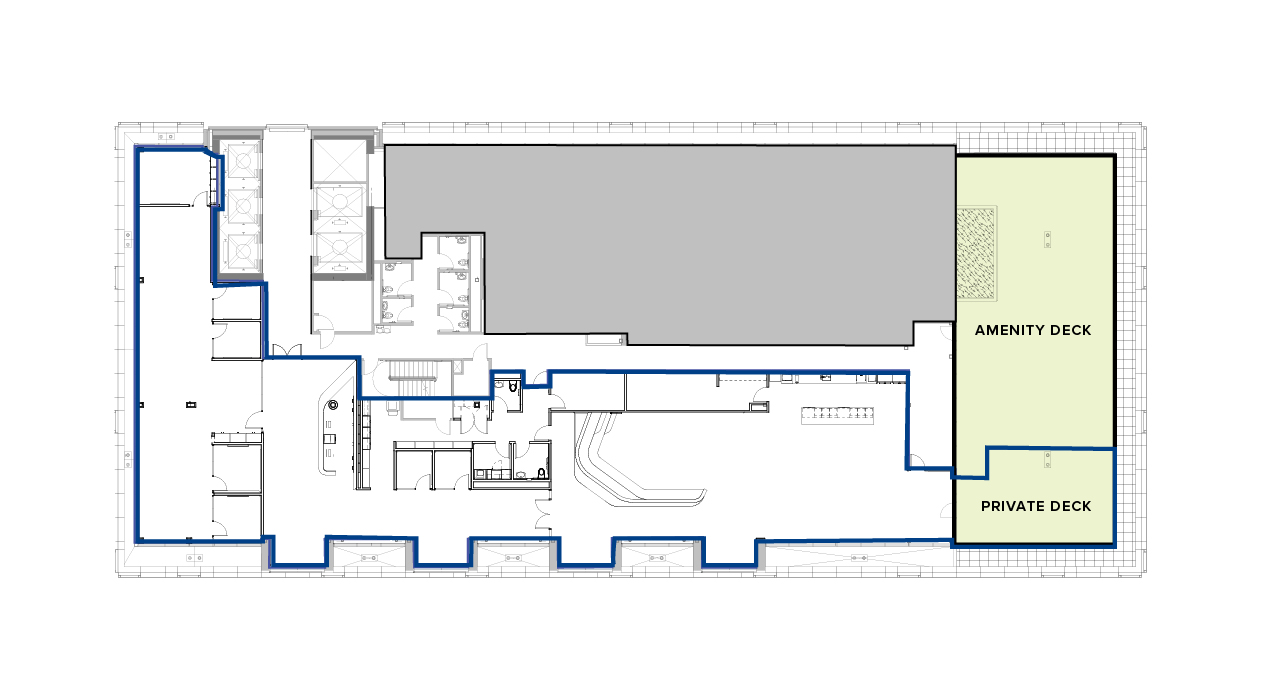
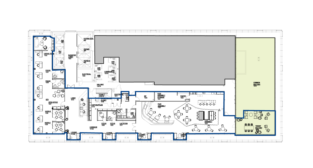
Move-In Ready Space 56K SF
Additional Shell Space 257K SF







