Innovation in Motion
BioMed Realty has developed flexible, move-in ready lab and office space built for groundbreaking research inside a premier selection of our Class A life science properties located in major life science ecosystems across the US and UK. With our vertically integrated platform that provides unmatched expertise and world-class quality, the Velocity Labs infrastructure and technology allows biotech innovators to execute mission-critical research and scale as needed, all while reducing expenditures.





What Makes BioMed Realty Velocity Labs Unique?
-

Faster Time-to-Market
Our casework ready lab spaces create a launchpad for our tenants, allowing them to conduct research effectively and efficiently, from day one.
-

Capital Savings
We offer our tenants optimal pricing structures to increase their capital efficiency, enabling them to better allocate their resources towards their bottom line.
-

Flexibility & Scalability
Our offering provides tenants with flexible layouts and frictionless upscaling opportunities across BioMed’s entire portfolio — 16+ million square feet in leading innovation markets in the US and UK.
-

Specialized & Purpose-Built
Our spaces are not just lab-capable, but lab-specialized — casework ready and purpose-built down to the detailed industry requirements for plumbing, power, ventilation and more.
-

Top-Tier Markets
Occupancy at one of our properties provides an ideal location in the top-tier markets and submarkets of the US and UK, with close proximity to a vibrant life science ecosystem.
-

World-Class Quality
Our lab spaces are embedded within BioMed’s Class A properties, giving companies of all sizes the advantages of world-class infrastructure and amenities purpose-built for the biotech industry’s biggest names.
-

Access to Capital
As a Blackstone portfolio company, BioMed Realty offers access to the life sciences investment group, putting tenants in front of capital investors.
-

The BioMed Realty Difference
Our fully integrated platform is highly differentiated by over 300 specialized experts in leasing, development, property management, facilities, and more.
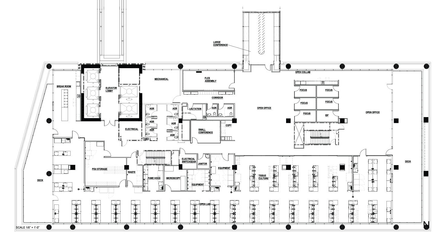
Dexter Yards Velocity Labs
-
Flexible, Move-in Ready Lab/Office
75% casework installed
-
Tech Specs
ELECTRICAL
-
Up to 20 w per sf in laboratory areas
HVAC SYSTEMS
-
Combination of existing shell and core HVAC systems (60%) and shell and core DOAS system ventilation (40%)
-
Specialized exhaust and pressure control with 6 ACH, temperature range 70-72°F, no humidity control or special filtration required
-
Existing Make-Up Air Units (MAU) used, providing up to 9,200 CFM per floor
PLUMBING
-
Potable and non-potable water supply for offices and labs
-
Laboratory plumbing and lab gases with central sterilization facility
-
